首页 空气能 地暖 暖气片 混合采暖 中央空调 地源热泵 新风 水处理 中央热水 清洗维护    
当前位置: 首页 > 工程案例
工程案例
博馨动态
博馨课堂
博馨资质
售后维保
博馨-中环国际公寓(三期)-空调
发布时间:2019-6-5 访问次数:1323
        


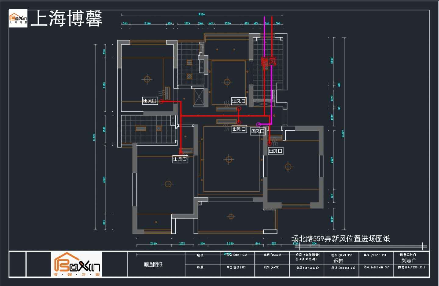
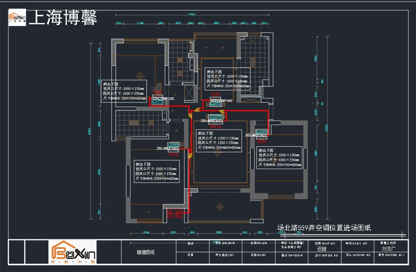
中环国际公寓(三期)现场施工相关信息

                                                                                                                                  

   ----------工程部


交底施工相关现场照片:

     

   

 



施工图纸方案照片:


 
下一条:博馨-英达大厦-明装暖气片

上一条:博馨-东原逸墅-地暖

 
◎ 2025 上海博馨实业有限公司 版权所有 电话:021-52683219 地址:上海市嘉定区金园五路366号1幢A406室 传真:021-52683209   沪ICP备11000048号-1